Grupo de aluminio Huajian Grupo de aluminio Huajian
Puerta batiente aislada serie HJGR60CM

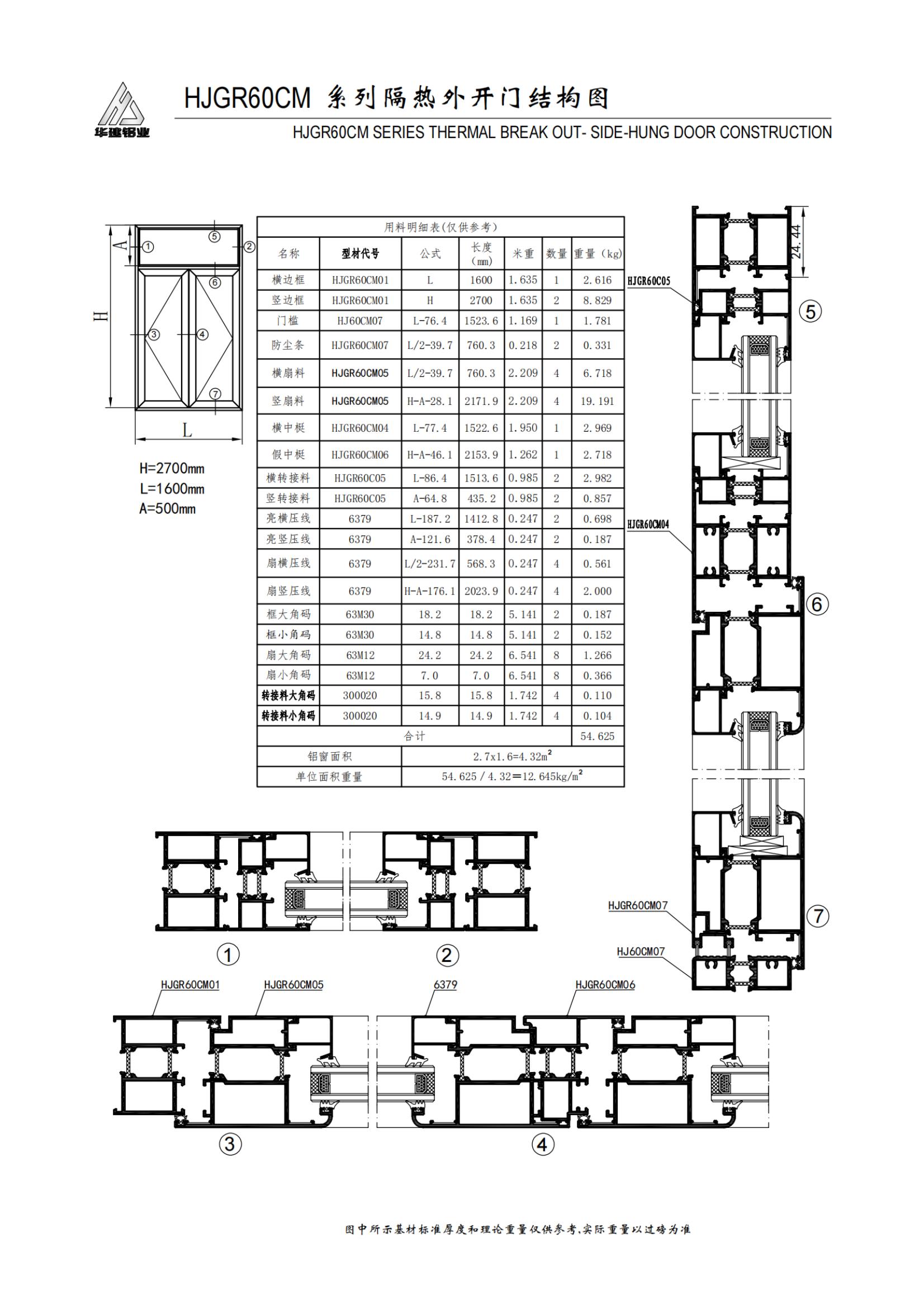
Perfiles de puertas y ventanas

Puerta batiente aislada serie HJGR60CM

Ventajas del producto

·Perfiles de alta resistencia

·Excelente rendimiento de aislamiento térmico

·Optimización de la estructura multicavidad

·Franja aislante (PA66), una marca nacional líder

·Gran resistencia a la intemperie, adaptable a condiciones climáticas extremas

Detalles del producto

150+Hay más de 150 líneas de producción de extrusión que van desde 600 hasta 10 000 toneladas en total.
80Capacidad de producción anual de 800.000 toneladas
1313 laboratorios de alto nivel
20+El grupo cuenta con más de 20 años de experiencia en el desarrollo de extrusiones de aluminio.

Ventajas del Sector

  ·Las materias primas están hechas de varillas de aluminio de grado A según estándar nacional.

  ·Nuestro propio centro de moldes, con una precisión de molde que alcanza el nivel micrométrico.

  ·150 líneas de producción de extrusión, extrusoras de 10.000 toneladas, gran capacidad de producción

  ·Diversos tratamientos de superficies y procesos punteros

  ·Fuertes capacidades de investigación y desarrollo técnico, con patentes y participación en la formulación de normas nacionales.

  ·Diseño flexible y diverso

  ·Certificación estándar internacional, con presencia en más de 50 países y regiones.

  ·Aprobación de casos de ingeniería a gran escala

  ·Servicio de ventanilla única

  ·Hay un centro nacional de pruebas que puede proporcionar informes de pruebas.

  ·Evaluación de la cualificación empresarial nacional y calificación honorífica

  ·Certificación ambiental verde

  ·25 años de experiencia en la personalización de perfiles arquitectónicos

Ventajas corporativas

  Gracias a nuestra capacidad para desarrollar aleaciones de aluminio, podemos adaptar las combinaciones de aleación a las diferentes necesidades de rendimiento de nuestros clientes. Esto no solo satisface sus necesidades de rendimiento del producto y diseño ligero, sino que también permite ahorrar costos.

  En función de los requisitos de precisión y rendimiento del producto, podemos diseñar de forma independiente la ruta del proceso de producción, lo que mejora enormemente el rendimiento de las piezas soldadas y garantiza la precisión dimensional del conjunto.

  Poseer la capacidad de desarrollar y modificar moldes de extrusión y estampación, reduciendo así los costos de desarrollo de moldes.

  Poseer líneas de producción de extrusión automatizadas y líneas de producción CNC ha reducido el costo laboral.

  Con líneas de producción avanzadas para el tratamiento de superficies que incluyen oxidación, electroforesis y pintura, no solo podemos satisfacer los diferentes requisitos de los clientes, sino también reducir los costos de inversión en equipos.

  El grupo cuenta actualmente con más de 150 líneas de producción de extrusión de entre 600 y 10 000 toneladas, con una capacidad de producción anual de 800 000 toneladas, de las cuales el 40 % supera las 2000 toneladas. Estas líneas incluyen extrusoras de diversas especificaciones, de entre 500 y 10 000 toneladas. La sexta fábrica se dedica principalmente a la producción de perfiles industriales y perfiles ligeros para automoción, con una amplia capacidad de producción para satisfacer las necesidades de extrusión de los clientes en diversos tamaños y especificaciones.

  Ha establecido un centro de pruebas estándar a nivel nacional, que ha obtenido la acreditación de laboratorio del Servicio Nacional de Acreditación de China para la Evaluación de la Conformidad (CNAS) y el Esquema de Acreditación de Metrología de China (CMA) para instituciones de inspección y pruebas. También ha establecido conjuntamente 13 laboratorios de alto nivel, que incluyen una sala de análisis químico, un laboratorio metalográfico, un laboratorio de propiedades mecánicas, un laboratorio de propiedades físicas, un laboratorio espectral, un laboratorio de niebla salina y un laboratorio de envejecimiento. Se han importado instrumentos y equipos clave de Estados Unidos, Alemania, Israel y otros países.

  El grupo tiene más de 20 años de experiencia en extrusión de aluminio, y a través de años de verificación y acumulación, ha formado una rica base de datos de datos: base de datos de productos, estándares de diseño, especificaciones de análisis, DFMEA, PFMEA, planes de control, datos de verificación de procesos, etc.